SPACE FOR LEASE

Welcome to Summit Centre

Experience a landmark medical-professional facility by Landrex.

First 2 Months Rent Free

Conditions apply.

Get In Touch Today!

Medical and Professional Office Space For Lease In St. Albert, Alberta

Summit Centre
200 Boudreau Road
St. Albert AB T8N 6B9

A Unique Offering

What makes this opportunity unique is the investment in a complete building upgrade project that will see Summit Centre transform into the industry-setting product one can expect from Landrex. The project will feature outdoor patio screened areas, a modernized building façade, complete interior upgrades along with several investments in mechanical and electrical technology and equipment.

A Unique Offering

What makes this opportunity unique is the investment in a complete building upgrade project that will see Summit Centre transform into the industry-setting product one can expect from Landrex. The project will feature outdoor patio screened areas, a modernized building façade, complete interior upgrades along with several investments in mechanical and electrical technology and equipment.

Offering Overview

  • 7,440 SF medical building space available
  • Close proximity to Sturgeon Community Hospital
  • Building exterior renovations to commence (TBD)
  • Join MIC Medical Imaging, RemedyRX Pharmacy and DynaLIFE

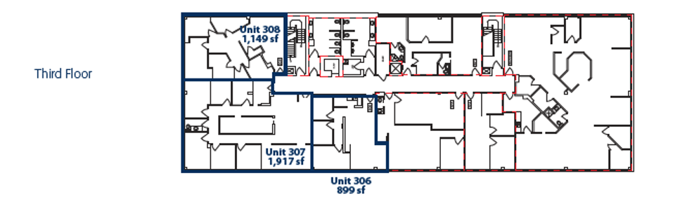
Floor Plans

Why should you choose our facility?

N

Property Details:

Address: 200 Boudreau Road
Price: Negotiable
Size: 1,149-3,066 SF
Property Type: Office/Medical
Building Size: 33,594

N

Nearby Amenities:

Sorrentinos, Boston Pizza, Central Social Hall, GoodLife Fitness, East Side Mario’s, Tim Hortons, CIBC, Chopped Leaf, Sobeys Liquor, Kal Tire, Starbucks, Sturgeon Community Hospital

N

Area Available:

Unit 101: 2,176 SF
Unit 206: 2,198 SF
Unit 306: 899 SF*
Unit 307: 1,917 SF*
Unit 308: 1,149 SF*
*contiguous

Location Matters

N

Perfectly Placed

Situated directly across from the Sturgeon Community Hospital, this professionally managed building features a site with long term commitments from recognized industry leaders such as MIC Medical Imaging and DynaLIFE.

N

Comes With Great Features Too!

Summit Centre, developed by Landrex Inc., is a landmark medical building located in St. Albert, AB. We are currently seeking quality Tenants like you to join our building as we expand our mission in delivering unparalleled medical experiences to our community.